Seguridad en excavaciones

Durante una excavación, si se encuentran personas y/o maquinaria en funcionamiento, los trabajadores deben estar por lo menos a dos metros de distancia del alcance máximo del brazo o parte de la máquina o equipo que se esté utilizando, teniendo en cuenta la zona de peligro del punto de operación de la máquina. De no cumplirse la condición anterior, el personal debe retirarse inmediatamente.

Tipos de excavación
| Mecánica o con máquinas |
|
Manual |
| Es aquella que se efectúa con cualquier equipo que tenga una fuente de potencia diferente a la fuerza humana bien sea electricidad, presión de aire o líquido, un motor de combustión interna o la gravedad. |
|
Es aquella que efectúan los trabajadores utilizando su fuerza física, ayudados por herramientas de mano como palas, picos, etc. |
Principales riesgos en la fase de excavación
La prevención de riesgos laborales en las empresas constructoras se enfrenta a una serie de dificultades las cuales exigen establecer acciones que permitan mitigar los riesgos que se presenten en el desarrollo de la actividad.
Dentro de las distintas fases del proceso constructivo encontramos las relacionadas con el cerramiento de obra y señalización, así como la de movimiento de tierras y excavaciones:
Cerramiento de obra y señalización
Principales riesgos:
- Sobreesfuerzos
- Golpes y cortes con extremidades
- Caídas a distinto nivel
- Atrapamientos
- Caídas de materiales desde nivel superior
- Volcado de pilas de materiales
- Caídas al mismo nivel
Normas básicas de seguridad:
- Capacitación de los operarios en la manipulación de cargas para prevenir sobreesfuerzos.
- Mantenimiento de orden y limpieza en las zonas de trabajo para prevenir caídas al mismo nivel.
- Cumplimiento de las normas de almacenamiento en zonas de descarga y apilamiento de materiales para evitar el volcado de los mismos:
- Superficie de almacenamiento horizontal y estable.
- Los materiales se manipularán entre dos operarios y descansarán sobre travesaños.
Movimiento de tierras y excavaciones
Principales riesgos:
- Derivados de la ejecución de trabajos bajo condiciones meteorológicas adversas
- Caída de objetos en movimiento
- Ruido
- Ambiente con polvo
- Exposición atmósferas peligrosas
- Contacto con líneas eléctricas
- Desprendimiento de tierra
- Accidentes de tránsito, colisiones, vuelcos y falsas maniobras
- Interferencias con instalaciones enterradas
- Ruptura de canalizaciones o redes
- Caídas a diferente nivel y al mismo nivel
- Colisión de estructuras
Normas básicas de seguridad:
- Conocimiento de la situación exacta de las instalaciones existentes en la zona de excavación para prevenir posibles interferencias, para lo cual se debe realizar una inspección y diligenciar una lista de verificación, elaborar el análisis de riesgo y realizar una inducción especifica de la tarea:
- Antes de ingresar por primera vez en cada turno
- Cuando se suspenda el trabajo, por cualquier razón, inspeccionar antes de volver a ingresar
- Verificación continua de las condiciones de seguridad y ambientales durante la excavación.
- Cuando la excavación tenga más de 1,50 metros de profundidad y su tamaño permita que un trabajador caiga adentro, deberá aplicarse la reglamentación vigente sobre trabajo en alturas para el personal que ingrese y el que trabaje a menos de 1,80 metros del borde, para lo cual podrá considerar delimitación o líneas de advertencia entre otras medidas.
- El área de trabajo debe permanecer ordenada y aseada, el material sobrante o excavado debe permanecer el menor tiempo posible en el sitio (en lo posible máximo 24 horas).
- Habilitación de una zona segura y exclusiva para la disposición de materiales o residuos producto de la excavación, a más de 0,60 metros de la excavación.
- Prohibición de realizar trabajos de excavación en las proximidades de postes eléctricos o de telefonía que puedan afectar su estabilidad.
- Marcación del terreno con diferentes colores o símbolos para indicar la ubicación y profundidad de instalaciones o redes de servicio público.
- Implantación de las medidas de sujeción diseñadas para las instalaciones de servicios que queden expuestas.
- Mantenimiento en buen estado y señalización correcta en las vías de circulación interna de la obra, para prevenir accidentes de tránsito o vuelcos.
- Prohibición de la presencia de operarios dentro de los radios de acción de la maquinaria.
- Respetar la distancia de seguridad en los cortes de terreno, que será como mínimo de un metro, aumentándose en función del tipo de terreno, durante las operaciones de descarga de material.
- Bombeo del agua de la obra proveniente de las lluvias para prevenir alteraciones del terreno, para ello se debe contar con motobombas disponibles para el manejo de aguas dentro de la excavación.
- Cuando en la excavación se deba introducir bombas sumergibles y otras herramientas o equipos eléctricos, previamente se debe haber verificado que estos no tengan fuga de corriente y que sus sistemas de protección estén en buen estado.
- Uso de pasarelas para atravesar las zanjas. La anchura de éstas será como mínimo de 60 cm.
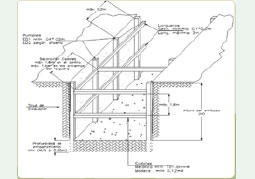
Entibados
Se define como entibado al conjunto de medios mecánicos o físicos utilizados en forma transitoria para impedir que una zanja excavada modifique sus dimensiones (geometría) en virtud al empuje de tierras. Se debe entender que el entibado es una actividad medio y no una finalidad. Sirve para poder lograr un objetivo de construcción, por lo cual a la conclusión de la obra es retirada casi en su totalidad.
Tener en cuenta:
- Es responsabilidad del constructor garantizar la estabilidad de la excavación y funcionabilidad en la obra de los sistemas de protección.
- Las dimensiones de los elementos estructurales de los sistemas de protección deben ser suficientes para soportar los esfuerzos de flexión, cortante y pandeo transmitidos por la excavación y deben estar justificados en el diseño.
- Para profundidades de excavación mayores a tres metros, la utilización de codales de madera en los sistemas de protección debe ser aprobada por la empresa apoyado por la persona competente o calificada.
- La utilización de cualquier otro tipo de entibado debe ser previamente aprobado por la persona calificada, se debe presentar una sustentación técnica y económica del tipo a utilizar.
Tipos de entibados
Entibados discontinuos
Entibados discontinuos en madera: consiste en un sistema de entibado discontinuo en madera, con base en el uso de largueros, puntales y codales en madera o metálicos.
Entibados discontinuos en madera con perfiles metálicos: consiste en un sistema de entibado discontinuo con puntales metálicos y codales metálicos o de madera.
|
|
 |
Entibados continuos
Entibados continuos en madera: Las paredes de la zanja deben ser sostenidas totalmente por tableros continuos de madera y deben ser soportados lateralmente por largueros de madera y puntales de madera o de acero.
Entibados continuos en madera con perfiles metálicos: consiste en un sistema de entibado continuo en madera, reforzado con puntales metálicos y codales metálicos o de madera. |
|
 |
Medidas de prevención de riesgos para la utilización y construcción de entibaciones de madera
- La entibación debe ser dimensionada para las cargas máximas previsibles en las condiciones más desfavorables.
- Las entibaciones deben ser revisadas al comenzar la jornada de trabajo, tensando los codales que estén sueltos. Se extremarán estas inspecciones después de interrupciones de trabajo de más de un día y/o luego de lluvias, heladas o sismos.
- Se deben reforzar las entibaciones en caso de sobrecargas por máquinas, camiones, materiales, suelos u otros.
- Se debe tener mayor precaución al desentibar ya que las condiciones del terreno pueden ser peores que las iniciales.
- En algunos casos es preferible perder el material de entibación, pues al procederse a desentibar y descomprimirse el terreno pueden producirse derrumbes.
- Debe desentibar de abajo a arriba, procurando trabajar desde fuera de la zanja, levantando con ganchos y cuerdas el material.
- Debe hacerse en pequeñas etapas, procurando no quitar de una vez los últimos 1,5 metros de entibado.
Fuente: Ministerio de trabajo / www.mintrabajo.gov.co/documents/
|
Accidente fatal en derrumbe de una excavación

1. Descripción del caso ¿Qué Pasó?
Siendo las 8:00 a.m. se iniciaron las labores de excavación mecánica, continuando con las labores realizadas en el día anterior donde ya se había logrado realizar entibado e instalación de 10 m de tubería para alcantarillado. De acuerdo a las cotas de diseño para realizar la instalación de la tubería proyectada en este sector era necesario realizar excavaciones con una profundidad aproximada de 5,60 metros en promedio. Para el desarrollo del proceso constructivo se venía realizando entibado con madera continua.
Sobre las 4:30 p.m. mientras se realizaban las actividades de entibado para iniciar las excavaciones manuales con el fin de despejar la campana del tubo de 20” para poder hacer el empalme del siguiente tubo, se presentó el desprendimiento del talud de un costado lateral que afectó parte del entibado, cubriendo a uno de los trabajadores.
Debido a la imposibilidad de ingresar la excavadora para liberar al obrero afectado, fue necesario realizar la liberación manualmente lo cual demoró el rescate. Una vez ubicado se procedió con el equipo paramédico a tomarle los signos vitales arrojando como consecuencia el fallecimiento del trabajador.
2. Medidas correctivas y preventivas que se deben tener en cuenta en la fuente donde se generó el accidente.
- Verificar que la excavación de profundidad mayor a 6 metros cuente con un estudio de suelos o el aval de una persona calificada.
- Realizar la identificación de peligros y valoración de los riesgos antes y durante el desarrollo del trabajo de acuerdo a las condiciones del suelo, clima, entre otras variables.
- Verificar que el tipo de entibado sea el adecuado, de acuerdo a la validación con el ingeniero civil o persona calificada.
- Implementar mínimo dos medios de acceso y salida de personas y/o equipos de la excavación, ubicados en sitios opuesto de la excavación.
3. Medidas correctivas y preventivas que se deben tener en cuenta en el medio que generó el accidente.
- Elaborar, documentar e implementar un procedimiento para la ejecución de la labor de excavación de manera segura, incluyendo responsabilidades en el SG-SST por cada cargo.
- Elaborar e implementar normas básicas de seguridad en los diferentes aspectos que incluyen el proceso, como: etapa de excavación, orden y aseo, maquinaria y equipos de trabajo, atmósferas peligrosas, instalaciones eléctricas y acumulación de agua.
- Implementar sistemas de permisos de trabajo para trabajos de excavación, incluyendo la inspección y lista de verificación de la excavación, con base en la Guía de Trabajo Seguro en Excavaciones del Ministerio de Trabajo y la normatividad vigente.
- Revisar la matriz de peligros y riesgos, con el fin de actualizar y evaluar el nivel de riesgo y medidas de control.
- Actualizar o implementar el Plan de Emergencia y Evacuación.
4. Medidas correctivas y preventivas que se deben tener en cuenta en el trabajador que generó el accidente.
- Realizar la inducción al personal sobre los riesgos y peligros de los cuales se encuentran expuestos.
- Verificar e inspeccionar la utilización de elementos de protección personal de acuerdo con las instrucciones de seguridad recibidas con los equipos de protección colectivos e individuales.
Fuente: Colmena Seguros / www.colmenaseguros.com
|
El RUC® reconoce las mejores prácticas empresariales en SSTA del país

El Comité Operativo del Registro Uniforme de Evaluación del Sistema de Gestión de Seguridad, Salud en el Trabajo y Ambiente para Contratistas RUC® ha establecido en su proceso de mejoramiento continuo, un reconocimiento a la gestión desarrollada por las empresas contratistas inscritas que busca destacar la labor y los resultados obtenidos y así reconocer el esfuerzo de los empresarios y de los trabajadores que cumplen con las leyes y normas, superando las expectativas de calidad de vida laboral en Colombia.
Requisitos generales de participación:
- Ser persona jurídica inscrita en el RUC® y contar con la inscripción vigente al momento de otorgar el reconocimiento.
- Recibir la auditoría RUC® realizada por el Consejo Colombiano de Seguridad, en el año del calendario en el cual se está otorgando el reconocimiento.
- Reportar sus estadísticas de accidentalidad con base en la Norma Técnica Colombiana NTC 3701; dichas estadísticas corresponderán a los últimos cinco (5) años vencidos a la fecha de la premiación o desde la fecha de constituida la empresa (si el tiempo es inferior a 5 años). Los datos reportados deben incluir las estadísticas de contratistas.
- Certificación de la ARL sobre accidentes reportados y sobre el total de días de incapacidad generados por ATEL (Accidentes de Trabajo y Enfermedades Laborales) de cada uno de los años. Esta certificación debe incluir:
- Número de accidentes calificados como laborales y número de accidentes pendientes por calificar.
- Número de accidentes graves de acuerdo con la definición de la Resolución 1401 de 2007.
- Número de casos de enfermedades laborales calificadas.
- Número de días de incapacidad generados por los accidentes reportados en el periodo.
- Número promedio de trabajadores expuestos afiliados a la ARL durante el periodo de la certificación.
- La certificación debe describir claramente si en el año inmediatamente anterior y en el año en curso se han presentado o no eventos fatales o con lesión incapacitante permanente parcial o invalidez.
- El contratista dando al cumplimiento legal, deberá no estar involucrado en demandas por accidentes de trabajo o enfermedad laboral.
Requisitos para el reconocimiento RUC®
- Ser evaluado en el formato actual del RUC® por el Consejo Colombiano de Seguridad.
- La auditoría realizada debe incluir tanto la evaluación documental como en campo.
- Obtener una calificación superior al 97% en el año calendario en el cual se está otorgando el reconocimiento.
- Presentar la disminución de la tendencia de ATEL a nivel de los indicadores estadísticos de IF (Índice de Frecuencia) Total, IF de lesiones incapacitantes e IS (Índice de Severidad) de accidentalidad en los últimos cinco (5) años vencidos a la fecha de premiación o desde la fecha de constituida la empresa (si el tiempo es inferior a 5 años). Los índices de accidentalidad deben registrar disminución año a año.
- No presentar impacto a la accidentalidad: muerte, invalidez o incapacidad permanente parcial de acuerdo con lo definido en la NTC 3701.
- No haber tenido accidentes graves de acuerdo con la definición de la Resolución 1401 de 2007.
En el marco del XXIII Congreso Nacional de Seguridad, Salud y Ambiente para Contratistas RUC®, el Consejo Colombiano de Seguridad (CCS) galardonó a las empresas del país que lideran la cultura de la gestión efectiva del riesgo mediante la implementación del RUC®.
Las empresas que recibieron el Reconocimiento RUC® por su alto desempeño, eficacia en la evolución de controles para el logro de sus políticas y objetivos, y el cumplimiento de altos estándares en seguridad, salud en el trabajo y ambiente para el año 2016, fueron:
| AR GEOPHYSICAL CONSULTANT LTDA |
H&M SERVICIOS Y TRANSPORTES DE LA ORINOQUIA S.A.S. |
| BIOINTECH S.A.S. |
PETROTECH DE COLOMBIA S.A.S. |
| CAMERON COLOMBIA LLC SUCURSAL COLOMBIANA |
POINTER INSTRUMENT SERVICES S.A.S. |
| DOVER INTERNATIONAL OPERATIONS INC |
PRODUCTOS Y EQUIPOS TÉCNICOS – PROEQUIP S.A.S. |
| EMPRESA INTERNACIONAL DE SOLUCIONES DE ENERGIA ELECTRICA TEMPORAL S.A.S. (ENERTEM S.A.S.) |
SAEXPLORATION COLOMBIA S.A.S. |
| EQUIPMENT ENGINEER LTDA |
SERVICIOS SUMINISTROS Y TRANSPORTE S.A. |
| FEPCO ZONA FRANCA S.A.S. |
TF AUDITORES Y ASESORES LTDA |
| GENERAL FIRE CONTROL S.A. |
TIPIEL S.A. |
| GENSER POWER S.A.S. E.S.P. |
VIGILANCIA SANTAFEREÑA Y CIA LTDA. |
| GEOESTUDIOS INGENIERÍA LTDA. |
VQ INGENIERIA S.A.S |
| GEOSERVICES |
YALE SERVISSEG LTDA |
Vea aquí la galería fotográfica de las empresas premiadas
|
Empresas inscritas al RUC®

El Consejo Colombiano de Seguridad (CCS) le da la bienvenida a las nuevas empresas inscritas en el RUC®. Esperamos que el trabajo en equipo contribuya a hacer del país un lugar más seguro y productivo para los trabajadores y el sector empresarial.
RUC® Hidrocarburos |
| Nombre |
Actividad económica |
Ciudad |
| CYMA INGENIERÍA LTDA. |
Comercio al por mayor de equipo- partes, piezas electrónicas y de telecomunicaciones |
Bogotá |
| ELECTRO LINE DH S.A.S. |
Instalaciones eléctricas |
Medellín |
| H2O CONTROL INGENIERIA S.A.S. |
Construcción de otras obras de ingeniería civil |
Medellín |
| IGT S.A.S. |
Actividades de arquitectura e ingeniería y otras actividades conexas de consultoría técnica |
Cali |
| INSTITUTO R.I. LTDA. |
Formación académica no formal |
Bogotá |
| INVERSIONES Y SERVICIOS INDUSTRIALES S.A.S. |
Mantenimiento y reparación especializado de maquinaria y equipo |
Villavicencio |
| JAC INGENIERIA S.A.S. |
Actividades de arquitectura e ingeniería y otras actividades conexas de consultoría técnica |
Barranquilla |
| JM SECURITY ADVISORS LTDA. |
Actividades de seguridad privada |
Bogotá |
| ORGANIZACION LEVIN DE COLOMBIA S.A.S. |
Otras actividades de servicio de apoyo a las empresas N.C.P. |
Bogotá |
| PROYECTOS Y SOLUCIONES INDSUTRIALES PSI S.A.S. |
Mantenimiento y reparación especializado de maquinaria y equipo |
Barranquilla |
| SGC CRANES S.A.S. |
Actividades de arquitectura e ingeniería y otras actividades conexas de consultoría técnica |
Cota |
| TSP ENERGY COLOMBIA S.A.S. |
Actividades de apoyo para la extracción de petróleo y de gas natural |
Bogotá |
| V.M.A OBRAS CIVILES S.A.S. |
Construcción de otras obras de ingeniería civil |
Barrancabermeja |
| VIGILANCIA Y SEGURIDAD CELTAS LTDA. - VICELTAS LTDA |
Actividades de seguridad privada |
Bogotá |
RUC® Otros Sectores |
| Nombre |
Actividad económica |
Ciudad |
| Carbones del Cerrejón |
| LABORATORIOS NANCY FLOREZ GARCIA S.A.S. |
Actividades de apoyo diagnóstico |
Valledupar |
| Johnson & Johnson |
| ARAR REPRESENTACIONES SISTEMAS S.A.S |
Alquiler y arrendamiento de otros tipos de maquinaria-equipo y bienes tangibles N.C.P |
Bogotá |
| Organización Grupo Corona |
| NATIONAL TOURS S.A.S. |
Transporte de pasajeros |
Itagüí |
| Drummond |
| HIDROMECANICA INGENIERIA S.A.S. |
Comercio al por mayor de otros tipos de maquinaria y equipo N.C.P. |
Bogotá |
|
Gestión de Residuos

Prográmese con las capacitaciones que el RUC® le ofrece para el mes de octubre:
| OCTUBRE |
| Fecha |
Ciudad |
Tema |
Horario |
Lugar |
Inscripción |
| 19 |
Webex |
Metodologías para Investigación de Accidentes |
9:00 a.m. -
11:00 a.m. |
Nacional por
Conexión |
ruc@ccs.org.co
Teléfono 2886355
opción 8 – opción 2 |
| 20 |
Cartagena |
Guía RUC®: Herramienta para el cumplimiento del decreto 1072 y los estándares mínimos |
2:00 p.m. -
5:00 p.m. |
Por definir |
ruc@ccs.org.co
Teléfono 2886355
opción 8 – opción 2 |
| 20 |
Bogotá |
Gestión de Residuos |
8:00 a.m.
- 10:00 m. |
Carrera 20
No. 39-52
Auditorio - CCS |
ruc@ccs.org.co
Teléfono 2886355
opción 8 – opción 2 |
| 27 |
Yopal |
Guía RUC®: Herramienta para el cumplimiento del decreto 1072 y los estándares mínimos |
8:00 a.m. -
12:00 m. |
Por definir |
ruc@ccs.org.co
Teléfono 2886355
opción 8 – opción 2 |
| 27 |
Bogotá |
Guía RUC®: Herramienta para el cumplimiento del decreto 1072 y los estándares mínimos |
8:00 a.m. -
12:00 m. |
Carrera 20
No. 39-52
Auditorio - CCS |
ruc@ccs.org.co
Teléfono 2886355
opción 8 – opción 2 |
*La programación está sujeta a cambios.
Síganos en redes sociales
Entérese de primera mano sobre actualizaciones, buenas prácticas y recomendaciones para la gestión de los riesgos laborales y ambientales en su empresa.
|
Actualización legal en SSTA
Resolución 1909 del 14 de septiembre de 2017

Por la cual se establece el Salvoconducto Único Nacional en Línea para la movilización de especímenes de la diversidad biológica.
Artículo 1: Objeto: Establecer el Salvoconducto Único Nacional en Línea (SUNL) para la movilización dentro del territorio nacional de especímenes de la diversidad biológica; así como para su removilización y renovación, el cual será expedido exclusivamente en la plataforma de la Ventanilla Integral de Trámites Ambientales en Línea (VITAL).
Artículo 2: Ámbito de aplicación: La presente resolución será aplicada por las autoridades ambientales competentes y todo aquel que esté interesado en transportar por el territorio nacional, especímenes de la diversidad biológica en primer grado de transformación, cuya obtención este amparada por acto administrativo otorgado por la autoridad ambiental competente.
Resolución 1910 del 14 de septiembre de 2017
Por la cual se adoptan los términos de referencia para la elaboración del Diagnóstico Ambiental de Alternativas – DAA para proyectos de uso de Biomasa para generación de energía y se toman otras de terminaciones.
Artículo 1: Adopción: Adóptense los términos de referencia identificados con el código TdR-016, para la elaboración del Diagnóstico Ambiental de Alternativas – DAA, para proyectos de uso de Biomasa para generación de energía, contenidos en el documento anexo a la presente resolución, el cual hace parte integral de la misma.
Artículo 2: Ámbito de aplicación: Los términos de referencia que se adoptan mediante la presente resolución, son aplicables a las autoridades ambientales y a los particulares dentro del trámite de licenciamiento ambiental para la elaboración del Diagnóstico Ambiental de Alternativas – DAA para proyectos de uso de Biomasa para generación de energía.
Resolución 40983 del 26 de septiembre de 2017
Por la cual se modifica la Resolución 180687 de 2003, reglamento técnico del alcohol carburante y su uso en combustibles nacional e importados, en relación con los esquemas de certificación y la declaración de verificación de inventarios de gases efecto invernadero(GEI).
Artículo 1: Modificar el artículo 16 de la resolución 180687 de 2003 modificado por el artículo 5 de la resolución 181069 de 2005, el cual quedara así:
Artículo 16: Independientemente del esquema de certificación adoptado, de acuerdo con el artículo 5 de la resolución conjunta 789 de 2016 del MADS y del MME, quien produzca o importe etanol anhidro deberá cumplir con los siguientes requisitos respecto al almacenamiento y despacho del mismo:
- Obtener el correspondiente certificado de conformidad de producto que acredite el cumplimiento de los parámetros y requisitos de calidad establecidos en la tabla 2 del artículo 4 de la resolución ídem, la cual deberá cumplir los requisitos previstos en los artículos 5, 6 y 7 ídem, y de Minas y Energía
- Mantener a disposición de las autoridades competentes el certificado de conformidad y una muestra testigo de cada lote o cochada de producto despachado o comercializado.
- Mantener durante dos (2) años la documentación relacionada con las operaciones de despacho y comercialización del producto.
Fuente. Normas referenciadas.
La anterior información se presenta exclusivamente con fines informativos, recuerde consultar el contenido completo de la norma.
|
|
|
| |
Si usted no desea seguir recibiendo este boletín, por favor envíenos un correo electrónico
cuyo asunto (subject) sea RETIREME a nidya.corzo@ccs.org.co. |
| | >
|